Back to search results
Back to search results
George's Quay House, Georges Quay, Limerick City Centre, Co. Limerick
€ 335 Monthly
Office
BER Details
BER Rating:
|
|
Property Overview:
Date Entered/Renewed:
12-11-2025 ( 25 days ago )
Daft Property Shortcode:
https://www.daft.ie/520501539
Property Description
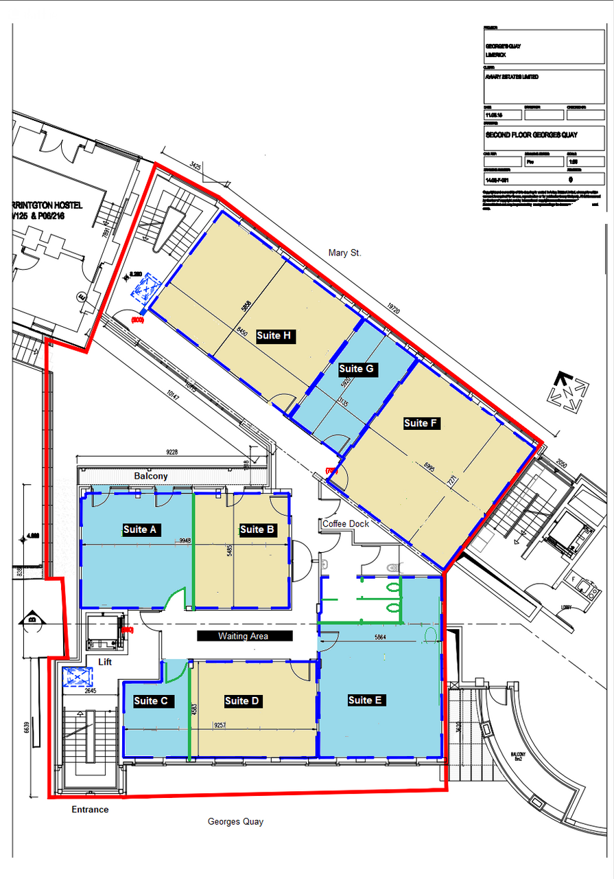
Medical Suites available in the prime location at Georges Quay House adjacent to all local amenities.
Excellent opportunity to establish or expand your medical practice in this newly refurbished second-floor commercial unit at Georges Quay. Ideally positioned beside the beside the Bon's Hospital, these versatile units are designed to meet the needs of modern healthcare providers.
Property Highlights:
8 Medical Suites - Sizes range from 136 sq. ft. to 578 sq. ft.,
pricing starting from '335.00 p.c.m.
Shared Facilities - Includes a spacious waiting area and fully equipped bathrooms with disability access
Lift Access - Easy accessibility for all visitors and tenants
Intercom Access
.
River Views -:Selected suites boast stunning views of the river
. Suite Size (Sq. ft.)
Suite A 389
Suite B 208
Suite C 136.5
Suite D 261
Suite E 457
Suite F 578
Suite G 176
Suite H 536
Inclusive Pricing
The rental price includes a contribution toward service charges (internal & external and building insurance
Prime Location
- Adjacent to the Bon's Hospital
- Excellent transport links and ample nearby parking for patients and staff.
- A prestigious address to enhance your practice's reputation.
Suitable for medical consultants, therapists, healthcare provider, etc.
Contact us today to arrange a viewing or for further information.
Excellent opportunity to establish or expand your medical practice in this newly refurbished second-floor commercial unit at Georges Quay. Ideally positioned beside the beside the Bon's Hospital, these versatile units are designed to meet the needs of modern healthcare providers.
Property Highlights:
8 Medical Suites - Sizes range from 136 sq. ft. to 578 sq. ft.,
pricing starting from '335.00 p.c.m.
Shared Facilities - Includes a spacious waiting area and fully equipped bathrooms with disability access
Lift Access - Easy accessibility for all visitors and tenants
Intercom Access
.
River Views -:Selected suites boast stunning views of the river
. Suite Size (Sq. ft.)
Suite A 389
Suite B 208
Suite C 136.5
Suite D 261
Suite E 457
Suite F 578
Suite G 176
Suite H 536
Inclusive Pricing
The rental price includes a contribution toward service charges (internal & external and building insurance
Prime Location
- Adjacent to the Bon's Hospital
- Excellent transport links and ample nearby parking for patients and staff.
- A prestigious address to enhance your practice's reputation.
Suitable for medical consultants, therapists, healthcare provider, etc.
Contact us today to arrange a viewing or for further information.
Advertiser details
Aviary Estates
Call:
Commercial Enquiries
|
Telephone:
061 318288
|
Phone Between Hours:
Mon-Fri 9am - 6pm